Type your search here
Sell faster
Buy smarter
Sign in
Registration
Sell
All ads
Property
Houses & Apartments For Sale
14bdrm House in Garment, Nifas Silk-Lafto for sale
1/5
Addis Ababa, Nifas Silk-Lafto, 2 days ago
5 views
14bdrm House in Garment, Nifas Silk-Lafto for sale
+1
House
14 bedrooms
9 bathrooms
Garment
Property Address
Garment
Estate Name
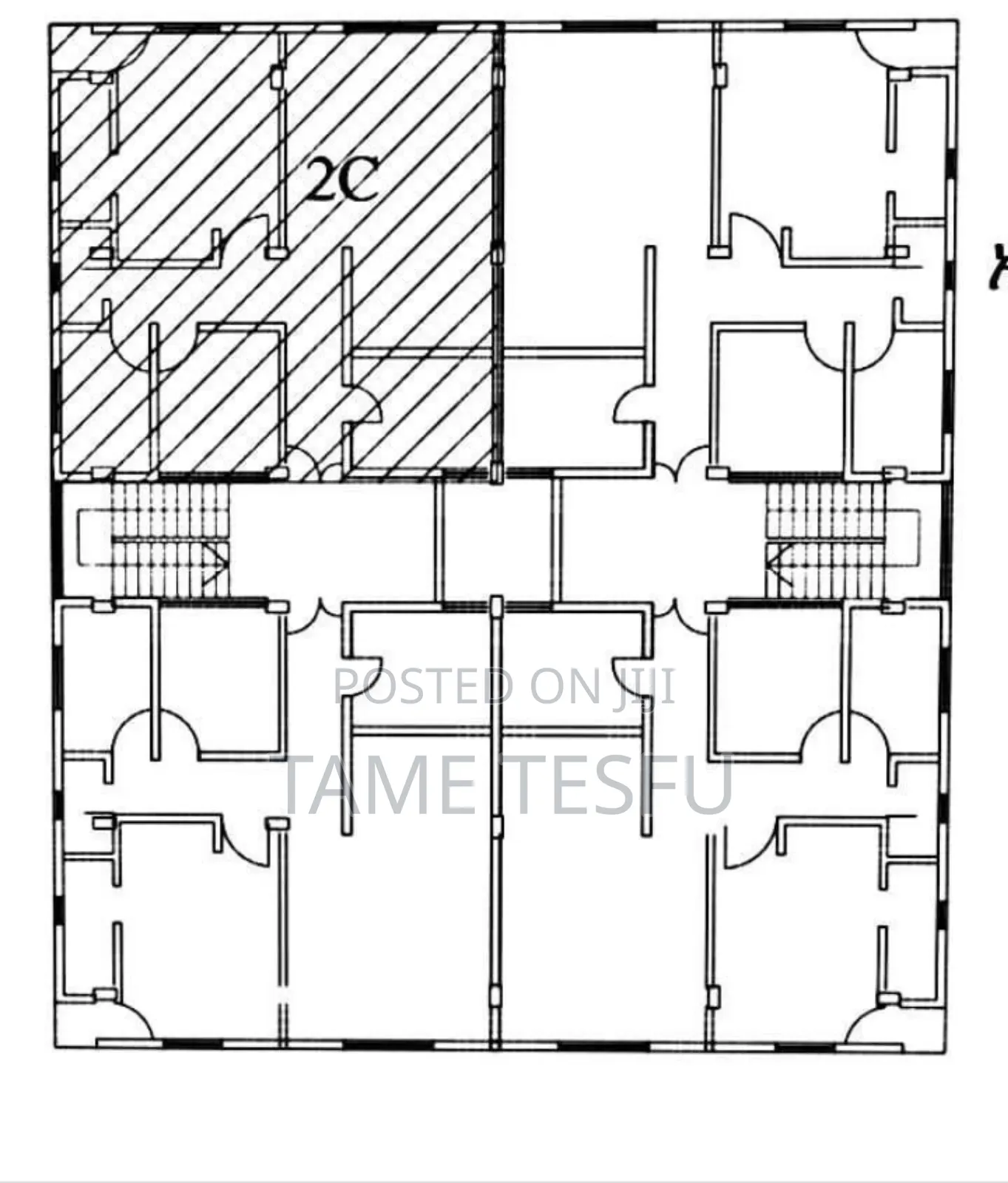
489
sqm
Property Size
Newly-Built
Condition
Unfurnished
Furnishing
8
Toilets
Tበአስቸኳይ የሚሸጥ መሰረት ህንፃ ሐይሌ ጋርመንት አካባቢ ስፋት 489 ካሬ ህንፃው ያረፈው 489 ካሬ ላይ ነው ፕላኑ B+G+12 የወጣ አሁን ያለበት ቤዝመት ተሞልቶል አሁኑኑ ይግዙ ትርፋማ ይሁኑ እሂ እድል እዳያመልጠወት ይፍጠኑ ለመግዛት ሆነ የሚሸጥ ቤት ፣ ቦታ፣ መጋዘን ፣ ፋብርካ፣ ህንፃ ፣ መኪና ካለ በዚህ ላኩልን
Show contact
ETB 52,000,000
Negotiable
Request call back
Tame Tesfu
1+ years on Jiji
Typically replies within a few hours
Show contact
Start chat
1 Feedback
view all
Mark unavailable
Report Abuse
Safety tips
It's safer not to pay ahead for inspections
Ask friends or somebody you trust to accompany you for viewing
Look around the apartment to ensure it meets your expectations
Don't pay beforehand if they won't let you move in immediately
Verify that the account details belong to the right property owner before initiating payment
Houses & Apartments For Sale in nifas-silk-lafto
Houses & Apartments For Sale in addis-ababa